KIKA contemporary art space(KIKA cas)は、個展やグループ展、パフォーマンス、トーク・イベントなど、アートと人々が交わる場を提供するクリエイティブなスペースです。週末を中心に利用できるギャラリーでは、観客とのインスピレーションあふれる交流が可能です。お申込みは1年前から可能です。空き状況の確認や仮予約についてはお気軽にお問い合わせください。

京都御所と鴨川に挟まれ、荒神橋近くの隠れたスポットにあるKIKA casは、古都・京都の独自の魅力が詰まったエリアに位置しています。周囲には洗練されたカフェやショップが点在し、静かながらもアートやカルチャーに感度の高い空間です。四季折々の京都の風景とともに、訪れる方に新鮮なアート体験を提供します。
KIKA casは以下のような多彩なアート活動にご利用いただけます。

営業時間:木〜月 13:00〜19:00
基本料金:80,000円 (税抜)
※ 搬入日および搬出日を含む3日間の利用です。1日だけの利用は「時間割貸出」をご利用ください。
2日目以降:1日あたり 20,000円 (税抜)
※ 営業時間外の利用は追加料金 が発生します。詳しくは利用規約をご参照ください。
時間割貸出: 1時間あたり 15,000円 (税抜)
※ 利用時間には準備および撤収時間を含みます。

ご利用希望の方は、KIKA cas までご連絡のうえ、日程と企画内容をご相談ください。空き状況の確認後、予約を進めます。内容によっては展示計画の資料提出が必要になる場合がございます。また、確定時には申込書の記入と利用料の半額前払いをお願いしております。なお、内容によってはお断りする場合がございますので、予めご了承ください。
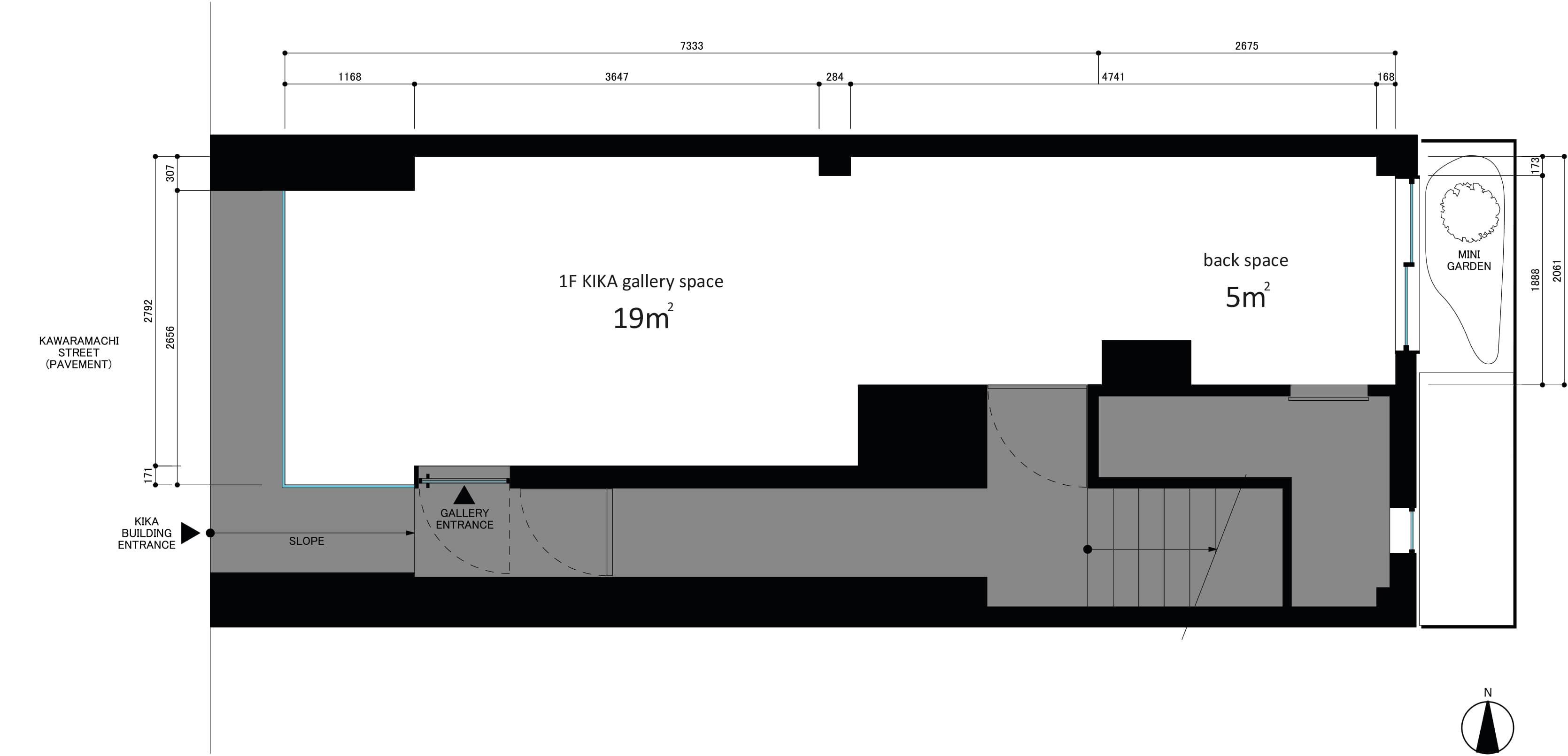
スペースと定員: スペースは24㎡で、定員は25名です。
キャンセルポリシー: ご利用日の3ヶ月以内にキャンセルされる場合は利用料の50%、1ヶ月以内のキャンセルは利用料の100%をお支払いいただきます。
搬入搬出: 基本的に、搬入は月曜日、搬出は木曜日に行っていただきます。その他の日程での搬入出が必要な場合は、平日料金が別途発生いたします。
会場内規制: スペースと備品を大切にご利用ください。音響やアロマの使用など、近隣や他の利用者への配慮をお願いいたします。また、KIKA casでは会場設備の損傷があった場合、実費のご負担をお願いする場合がございます。